ZHZY-GSXJ-3000
管式小剪举升机ZHZY-GSXJ-3000
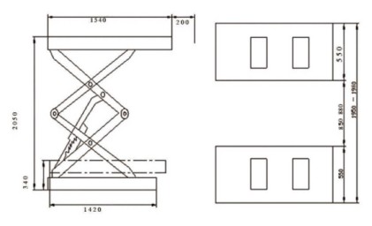
主要技术参数:Main technical parameters:
|
最大举升能力 max. Lifting capacity
|
3000kg
|
|
举升高度 lifting height
|
2150mm
|
|
升降时间 lifting /dropping time
|
1.2m/min
|
|
平台长度 platform length
|
1540mm
|
|
平台宽度 platform width
|
550mm
|
|
电机功率 motor power
|
380v-2.2kw or 220v-2.2kw
|
|
额定油压 rated oil pressure
|
20MPa
|
|
气源压力 air supply
|
6~8kgf/c㎡
|
|
外型尺寸 outline dimension
|
长×宽×高1540×1900×340
Length ×width ×height
|
|
设备重量 equipment weight
|
800kg
|
特点简介:
藏地式举升机适用于小型轿车的维修与保养,其特点有:
1.采用藏地式平板结构,占用空间小。
2.具有气动自锁保险,安全可靠。
3.液压系统采用集成阀板油路和进口密封件,确保机器的稳定性和使用寿命。
4.带有手动预接口,停电时可采用手动下降。
5.本机由机架、液压系统、气动系统和电气系统四部分组成。
5. This machine is composed of four parts, hydraulic system、 pneumatic system and electric system.




